Δημαρχείο Φιλαδέλφειας (1987)
ΑΡΧΙΤΕΚΤΟΝΙΚΟΣ ΔΙΑΓΩΝΙΣΜΟΣ, 1987 /Γ΄ ΒΡΑΒΕΙΟ
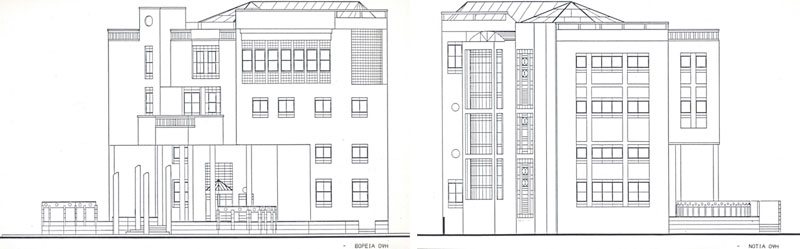
Επιλέξαμε να ξεχωρίσουμε το Δημαρχείο, ώστε ν’ αποτελεί ευδιάκριτο σημείο αναφοράς στο Δήμο και ταυτόχρονα να υπενθυμίσουμε τη συνέχεια του αστικού ιστού της πόλης. Η συνέχεια στηρίζεται στο σεβασμό των οικοδομικών γραμμών που ακολουθεί ένα τμήμα του κτιρίου, ενώ η υπεροχή και η διαφορετικότητα επιτυγχάνεται με τον «περίοπτο», ανοιχτό στα νότια, τύπο κτιρίου και τη διαμόρφωση του ισογείου ως χώρου υποδοχής (πλατείας – πλατώματος).



