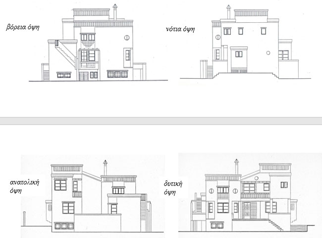
Κατοικία στον Κάλαμο (1988) Πρόκειται για παραθεριστική κατοικία 2 ατόμων σε ευρύχωρο οικόπεδο με ήδη υπάρχουσα βλάστηση, η οποία και θα ενισχυθεί. Loading