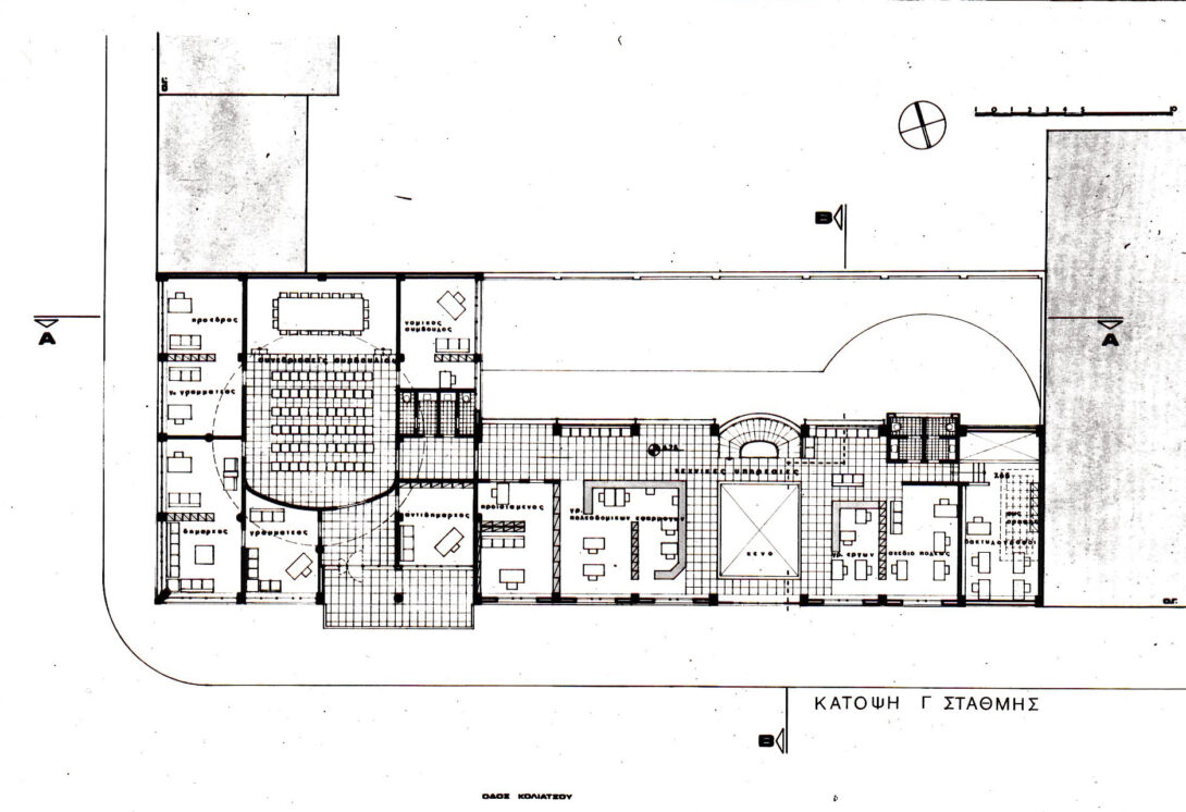
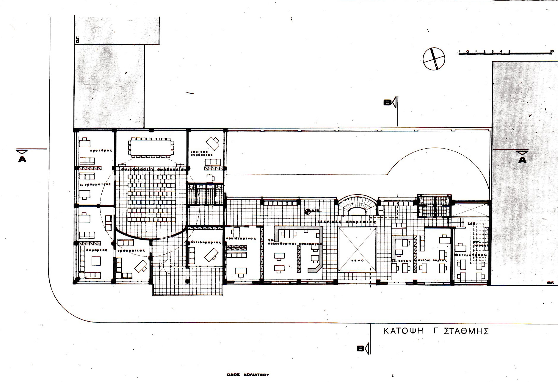
Δημαρχείο Κορίνθου (1982)
Τη μορφή του κτιρίου επηρεάζουν οι παρακάτω επιλογές:
Η διαφοροποίηση και η σύνθεση σ’ ενιαίο κτίριο των δύο βασικών ενοτήτων. Οι ενότητες Α και Β ενοποιούνται με τα κοινά στοιχεία της στέγης, του καννάβου που οργανώνει τη σύνθεση και την κατασκευή και τα μορφολογικά στοιχεία των όψεων (στέψη, βάση κτιρίου). Ενοποιούνται με την επεξεργασία του χώρου προσπέλασης και κίνησης που αποτελεί τη συνδετήρια ραχοκοκαλιά των δύο ενοτήτων. Ενοποιούνται και διαχωρίζονται με τα κοινά και διαφορετικά χαρακτηριστικά των ανοιγμάτων. Διαχωρίζονται με τη βοήθεια των επί μέρους ενοτήτων των όψεων και τη σαφήνεια δύο αυτοτελών σχημάτων – ενός τετραγώνου και ενός παραλληλογράμμου – στην κάτοψη…




