Τρεις κατοικίες στο Μετς (2002)
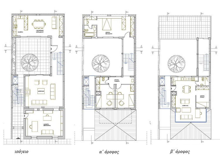
ΠΡΟΣΘΗΚΗ ΣΕ ΥΠΑΡΧΟΥΣΑ ΔΙΑΤΗΡΗΤΕΑ ΚΑΤΟΙΚΙΑ
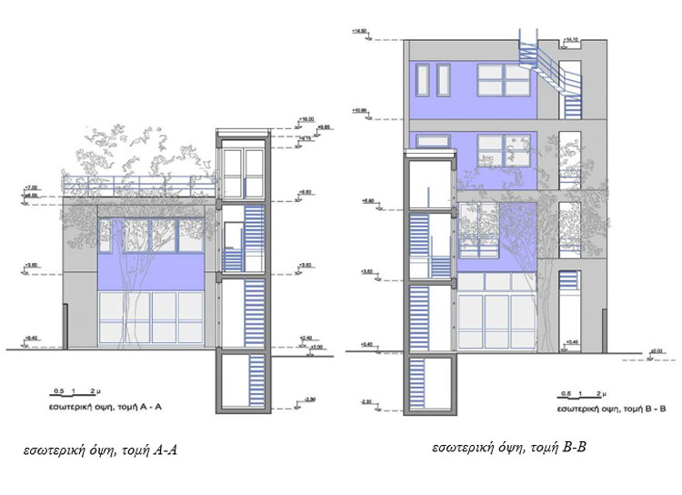
Η διατηρητέα κατοικία επισκευάζεται και εντάσσεται στο νέο κτιριακό σύνολο μιας κατοικίας που οργανώνεται σε τρεις στάθμες: ισόγειο, α όροφος, β όροφος με εσωτερική αυλή. Το ισόγειο και τον πρώτο όροφο καταλαμβάνει μία κατοικία με κοινόχρηστους και ατομικούς χώρους γονέων και παιδιών. Στο ισόγειο τοποθετείται το γραφείο με εξωτερική και εσωτερική επικοινωνία. Στον β όροφο αναπτύσσεται ένα μονόχωρο διαμέρισμα.







