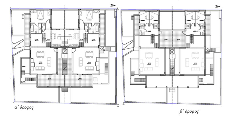
Πρόκειται για 4 κατοικίες σε ένα αραιοδομημένο περιβάλλον, ο υπαίθριος χώρος των οποίων με τον χρόνο θα φυτευτεί στο έδαφος και θα πρασινίσει στους εξώστες και τις πέργκολες. Οι δύο κατοικίες στην Α΄ στάθμη είναι μονώροφες οι δύο άλλες οργανώνονται σε περισσότερα επίπεδα.