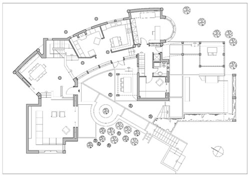
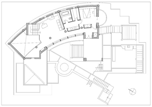
Κατοικία στη Μαλακάσα (1999)
Ελληνική συμμετοχή με επιλογή για το βραβείο Mies Van Der Rohe
Η κατοικία είναι κύριας διαμονής δύο ατόμων, σ’ ένα πλούσιο φυσικό περιβάλλον με περιορισμένο αριθμό κτιρίων. Οργανώνεται σε δύο επίπεδα: το πρώτο περιλαμβάνει καθιστικό, τραπεζαρία, κουζίνα, γραφείο και ξενώνα, το δεύτερο υπνοδωμάτιο με λουτρό και λοιπούς σχετικούς χώρους.









