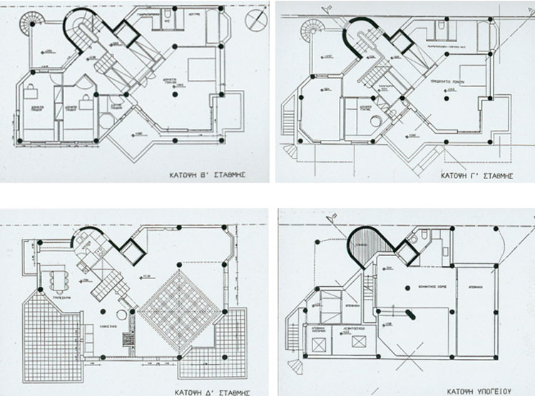
Κατοικία στην Ηλιούπολη (1986)
Η κατοικία οργανώνεται καθ’ ύψος ώστε να εξασφαλιστεί η καλύτερη δυνατή θέα στους επόμενους ορόφους. Το ισόγειο περιλαμβάνει χώρους πρόσβασης, ενώ στις χαμηλότερες στάθμες τοποθετούνται ιδιωτικοί χώροι με τρόπο ώστε να διατηρείται η επιμέρους ιδιωτικότητά τους. Στο τελευταίο επίπεδο συγκεντρώνονται οι κοινόχρηστοι χώροι με ανοιχτή θέα στο βουνό και τη θάλασσα.







